室内车间降温12℃!湖北某食品有限公司车间使用扇机组合的工程案列...
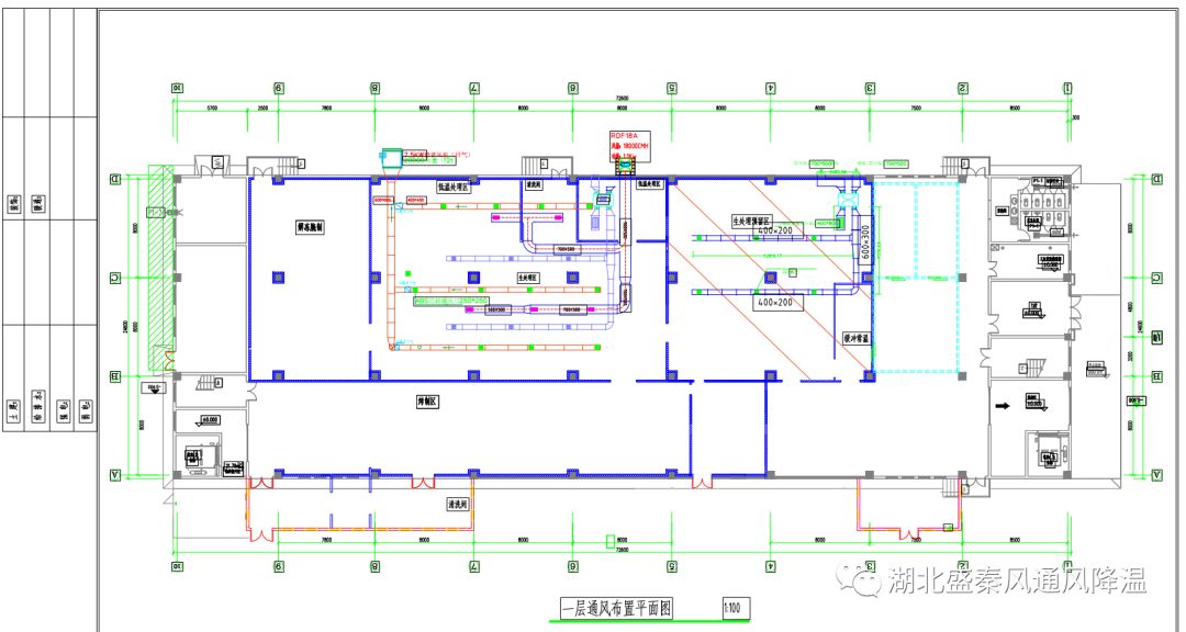
客户介绍 设计方案 如图为方案设计图之一 入夏后气温节节攀升,该公司车间内的温度亦是异常闷热,特别是生产车间工人干活更是汗流浃背,影响工作积极性及生产效率。之前也用过一些大功率的通风设备如中央空调,短时间内能起到降温效果但成本过高,耗电量过大,时间久了维修人工成本也高等问题。六月初该公司相关负责人胡总通过网络找到我们湖北盛秦风公司,由我们盛秦风专业团队看现场,给2000㎡的生产车间设计出了安装12台RDF18A环保空调,两台工业大风扇,即“扇机组合”的设计方案,通过综合考量该公司选择并采纳了我们的方案。 降温效果 经盛秦风工程部的师傅们不怕辛苦,齐心协力高质量的完成了安装工程任务。当日正午经仪器检测工厂外的气温为37℃,车间的温度为42℃,安装扇机组合之后,车间的整体温度为30.9℃,降温达到近12℃!效果比较显著,车间阵阵凉风,该公司员工和领导都表示满意。高大空间通风降温就找盛秦风!客户的满意是我们的追求与不竭动力!





